Title Image
Style Callout
4 to 5 BEDROOM LOFT TOWNHOME
up to 3287 sq ft
About This Plan
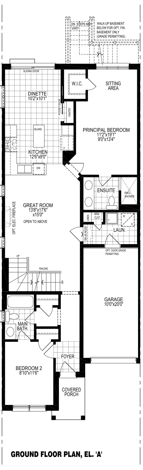
The covered porch gives this townhome a delightfully traditional appeal. Yet inside, the open plan kitchen – with its dining and family areas – is designed with busy, modern living in mind.
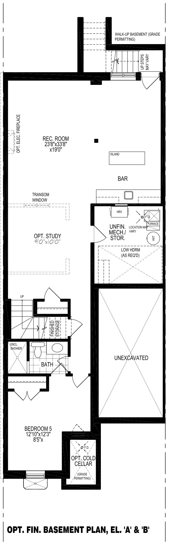
The optional finished basement plan allows for a fourth bedroom and bathroom, and a home office.
This Plan's Finer Points
- Covered front porch
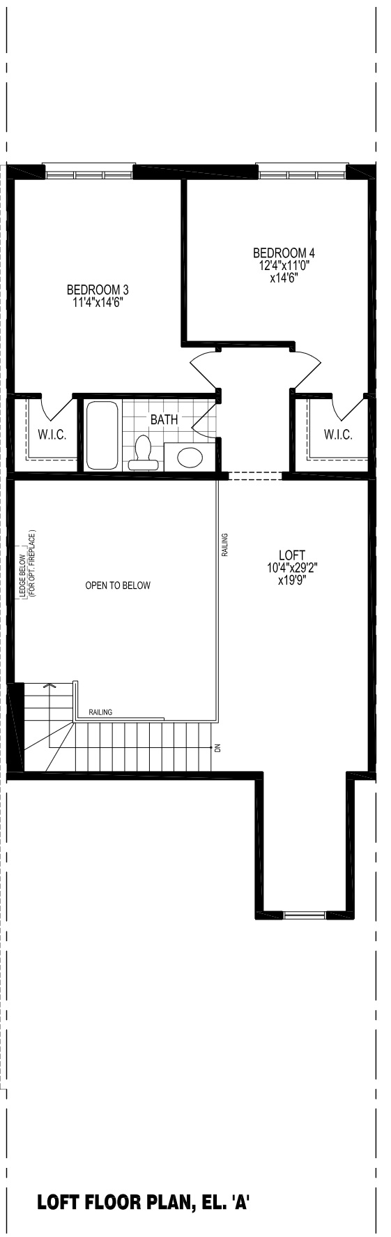
- Spacious loft ceiling great room
- Main floor principal bedroom with ensuite
- Up to 5 bedrooms and bathrooms
- Gas fireplace (optional)
- Indoor parking
Elevation Image
Elevation Text
GROUND LEVEL
Main Floor Image
Main Floor Text
LOFT
2nd Floor Image
2nd Floor Text
BASEMENT
Basement Image
Basement Text
BASEMENT
